Los equipos dentales o unidades odontológicas representan el corazón tecnológico de toda clínica dental moderna, integrando sistemas avanzados que facilitan la práctica profesional diaria. Estos equipamientos constituyen una inversión estratégica que determina significativamente la eficiencia y calidad de los tratamientos odontológicos. Una unidad dental moderna representa el núcleo operativo del consultorio, siendo fundamental su correcta selección y configuración.
En esta categoría, encontrará una selección curada de equipos convencionales de última generación, así como equipos dentales portátiles y soluciones murales y rodantes. Los equipos odontológicos que proponemos son el resultado de una actividad de investigación y desarrollo continua para ofrecer a cada profesional del sector los mejores instrumentos para trabajar con precisión, rapidez y eficiencia.
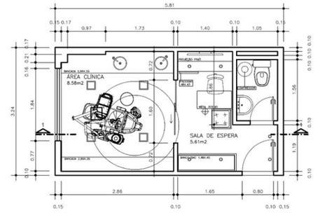
Antes de adquirir cualquier equipo dental, es fundamental medir y evaluar el espacio disponible en tu clínica. Las dimensiones mínimas recomendadas para la instalación de una unidad dental son de 2.35 metros de ancho y 1.95 metros de profundidad, pero también depende del tipo de unidad que quieras colocar. Además, debes asegurarte de que las puertas de acceso tengan al menos 1 metro de ancho, lo que permitirá la entrada y salida sin problemas.

Componentes y Características de un Equipo Dental Moderno
El equipo dental contemporáneo incorpora una configuración completa que incluye: sillón dental con sistemas electrohidráulicos de última generación, sistemas de aspiración quirúrgica de alto rendimiento, instrumental rotatorio (micromotor con tecnología brushless, turbina con iluminación LED integrada), portainstrumentos ergonómicos, panel de control digital con interfaces táctiles y sistemas de iluminación LED con ajuste cromático y focal. La composición específica varía según el modelo y fabricante, adaptándose a diferentes necesidades clínicas.
Los sistemas actuales incorporan ajustes electrónicos multiposición con memorias programables, facilitando la ergonomía tanto para el profesional como para el paciente. Los sistemas de compensación pélvica y apoyo lumbar dinámico garantizan el confort durante procedimientos prolongados, mientras que los sistemas de seguridad integrados, como sensores anticolisión y paradas de emergencia, aseguran la operatividad segura.
Uno de los requisitos para instalar un equipo dental más críticos es la ubicación de las conexiones eléctricas, hidráulicas y neumáticas. Estas conexiones deben estar diseñadas con precisión y, preferiblemente, estar a ras de suelo para garantizar tanto la seguridad como la estética del entorno de trabajo. Para asegurarte de que estas conexiones se ubiquen correctamente, debes consultar las dimensiones y distancias recomendadas por el fabricante del equipo dental.

Equipos Dentales Portátiles: Flexibilidad y Adaptabilidad
Encontrarás equipos dentales portátiles y soluciones murales y rodantes. La accesibilidad a tu clínica dental es esencial para la instalación de un equipo dental. La puerta de acceso debe tener un ancho mínimo de 1 metro, lo que facilitará el ingreso del equipo, de los pacientes y de los pacientes con necesidades especiales.
La unidad dental transportable está adaptada a las necesidades más exigentes del sector dental. Su portabilidad es práctica, sencilla y cómoda, y permitirá tanto al odontólogo como al paciente la ergonomía necesaria para desarrollar su trabajo.
Principales características de la camilla dental portable:
- Respaldo completamente ajustable de 90 a 160 grados.
- Cabezal ajustable y regulable en altura.
- Todo el cuerpo de la unidad dental está fabricado en aluminio.
- Medidas (183-100) x 60 x (55-72) cm.
- Peso 25kg.
- Lámpara de iluminación LED.
Características adicionales de la unidad portable:
- Tapicería azul.
- Reposapiés para confort del paciente.
- Apoyabrazos.

Consideraciones Adicionales para la Instalación
Si estás reemplazando un equipo dental existente, ten en cuenta para la elaboración de tu presupuesto, que el proceso de desinstalación puede conllevar un cargo extra. Planifica con anticipación la instalación de tu unidad dental. Si la primera visita no se lleva a cabo debido a cuestiones ajenas a la empresa proveedora, es posible que debas asumir un coste extra por la siguiente visita.
Es importante tener en cuenta que la instalación de equipos dentales puede conllevar ciertos riesgos para el entorno de tu clínica. Daños a pisos, alfombras, techos, escaleras y ventanas pueden ocurrir si no se cumplen las medidas mínimas para ingresar la unidad.
Como ves, antes de reformar o abrir una clínica dental, es fundamental conocer paso a paso los requisitos para instalar una unidad dental. Siguiendo estas pautas, puedes asegurarte de que tu clínica esté equipada de manera eficiente y lista para proporcionar atención dental de alta calidad que buscas para tus pacientes.
Sistemas de Aspiración Húmeda: Eficiencia y Mantenimiento
Los sistemas de aspiración húmeda representan la solución más recomendada para equipos dentales por su eficiente manejo de residuos y mayor vida útil. Este sistema utiliza agua para crear el vacío necesario, lo que facilita el transporte de residuos y reduce significativamente el mantenimiento del equipo dental.
Requerimientos de Instalación
- Separador de amalgama (obligatorio por normativa)
- Bomba de aspiración húmeda
- Sistema de bypass para mantenimiento
- Válvulas antiretorno
- Filtros de partículas
- Decantador de sedimentos
Consideraciones de Espacio
- Sala de máquinas ventilada
- Acceso para mantenimiento
- Distancia máxima y desniveles recomendados
- Espacio para sistema de bypass y filtros
Ventajas Operativas
- Mayor poder de aspiración (hasta 300 l/min)
- Reducción de ruidos en consulta
- Menor mantenimiento correctivo
- Vida útil superior (10-15 años)
- Mejor gestión de residuos biológicos
INTEGO Ambidiestros: Adaptabilidad para Profesionales
El sillón dental INTEGO Ambidiestros está diseñado para odontólogos diestros y zurdos que buscan un diseño ergonómico óptimo que no comprometa al tratamiento. Con tan solo unos pasos que se pueden realizar en 15 segundos, este sillón dental puede pasar de ser una unidad para diestros a una unidad para zurdos y viceversa, gracias a su exclusivo mecanismo de rotación. El equipamiento INTEGO Ambidiestros se puede configurar de la forma que mejor se adapte a su trabajo durante el proceso de tratamiento.
INTEGO Ambidiestros permite la posibilidad de elegir el panel de mando. Opcionalmente, integre en su sillón EasyTouch. Aporta una mayor comodidad de manejo gracias a su clara tecnología de pantalla táctil y un mayor número de posibilidades de manejo y visualización. Incluya en su EasyTouch un Apex-Locator, que permite un control permanente de la profundidad de trabajo durante el tratamiento de endodoncia.
Con independencia de que prefiera tratar a sus pacientes como odontólogo diestro o zurdo, contará en cada situación con un asiento intuitivo, un posicionamiento cómodo, una visibilidad óptima y unos flujos de trabajo integrados. El programa combina todas las dimensiones de la ergonomía: mayor libertad de movimiento gracias a la posición intuitiva que facilita el asiento, y un acceso optimizado entre el elemento odontológico y el auxiliar.
Gracias a un ajuste perfecto de la unidad de tratamiento, el paciente tiene un soporte ideal de la columna vertebral. El respaldo y el asiento del sillón se mueven de forma sincronizada y suave para lograr un posicionamiento óptimo, sin necesidad de realizar ajustes posteriores del apoyacabezas.
Todas las unidades de tratamiento Dentsply Sirona son diseñadas y fabricadas íntegramente en Alemania bajo estándares de fabricación alemanes: excelencia, fiabilidad y durabilidad. Una estricta selección de materiales, sólidos componentes en el interior y un exterior exclusivo, marcan la diferencia entre una unidad convencional y una unidad de tratamiento de Dentsply Sirona. Un proceso de producción liderado por especialistas expertos en prestar atención a los detalles, complementado con minuciosos procesos de pruebas.